Suite 1.02/35 Grafton Street, Bondi Junction
Fully Fitted Turn-Key Office with Northern Aspect and Harbour Views
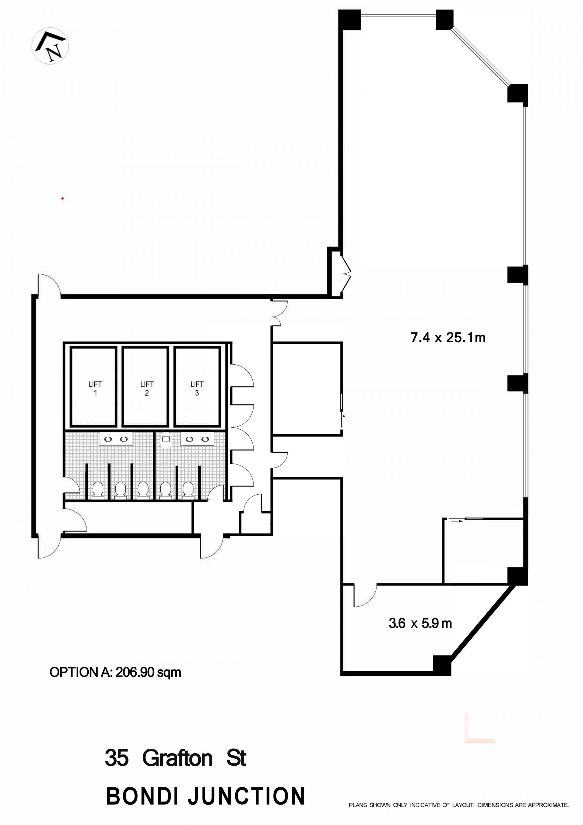
HillCo Property is pleased to offer this fully fitted space, within one of Bondi Junction's most sought after buildings, Travel House;Features:
+ 235.7 sqm (approx) of fitted office space, with flexibility to modify area to suit requirements
+ Fully furnished turn-key office solution, including combination of meeting rooms, offices and open plan workstations
+ Only one other tenancy on the floor
+ Refurbished building with 3 lifts, common kitchen and bathrooms on the floor
+ Secure parking available separately
+ 24-7 secure access with ground floor lobby receptionist
+ North-East facing with great views and abundant natural light
Centrally located just 400m from Bondi Junction Bus/Rail interchange, and just a short walk to all local amenities including Westfield Shopping Centre.
